En 1796, le lieu apparaît sur un plan de la ville, sous le nom « Jardins de Saint-Martin », sous une forme semblable à celle d’aujourd’hui. En 1898, il a été acheté par mes grands-parents, qui sont venus des montagnes de Los Cameros près de Logroño* . La maison a été inaugurée en 1903. Construite avec compétence et amour, elle est une véritable expression d'un mode de compréhension du monde, d’une culture riche et plurielle : solide à l'extérieur, chaleureuse et confortable à l’intérieur. On la dit sobre et élégante… tour à tour silencieuse et animée. Elle fut construite avec des matériaux et techniques appropriés et, je suppose, par des maîtres d’œuvre réputés. Elle est entourée d’un mur de pierre garni de mousses et de lichens, marquant une séparation très nette entre l'intérieur et l'extérieur, créant son propre monde. La promenade conduit vers les arbres fruitiers, pelouses, arbustes et plantes à fleurs placés dans un désordre apparent, puis vers les champs de maïs et la célèbre chênaie proche d’un ruisseau qu’on enjambe par deux petits ponts.
Un témoin architectural
Mais le joyau de la maison est sa chapelle, construite, dans les années 1940, à la mesure d'un grand et magnifique retable baroque galicien du XVIIIe siècle acheté par ma grand-mère. Le Baroque est un des points forts de l'histoire de l'art galicien, particulièrement en ce qui concerne les retables et l'architecture développée à partir du milieu du XVIIe siècle. Depuis le roman, si riche sur le chemin de Saint-Jacques, on n'avait pas assisté à un tel désir de renouvellement dans l’art religieux. Ce baroque galicien est connu pour être léger et avoir éliminé tout excès dans l’expression comme on trouve dans le roccoco. Il entretient une relation étroite avec le classicisme. On considère comme très important dans de tels retables la fusion du baroque avec la couleur et la fantaisie des peintures indigènes de l’Amérique espagnole. Cela leur donne un caractère et un sens artistique uniques dans l'histoire de l'art.
Le retable étant dépourvu de statues, ma grand-mère en a commandé d’autres dans les ateliers de Barcelone Claudio Rius en 1945. Elle voulait que ses enfants soient représentés sur l'autel : de gauche à droite et de haut en bas, Jean Népomucène, Pierre, Elizabeth, Acisclo (mon grand-père) et Carmen. Sa fille Rosario est située sur un côté de l'intérieur du Tabernacle. Au centre le Sacré-Cœur préside à la vie familiale. Et pour couronner le tout, l’apôtre Jacques à cheval, à l'arcade supérieure. Dans le chœur, mon frère José Luis a joué de l'harmonium et nous avons chanté dans les fêtes de famille, mariages, communions, anniversaires et lors des décès.
Un foyer d'oeuvres sociales

Dna. Isabelle, la grand-mère
Vista Alegre, tout en étant importante dans le passé et le présent, est encore plus prestigieuse par sa mission qui a été de se mettre au service de la ville de Santiago et de ses habitants, à travers l’œuvre effectuée par mes ancêtres. Mon grand-père était connu pour sa charité et son sens de la justice. Il est décédé en 1905 à l'âge de 39 ans. Ma grand-mère était âgée de 33 ans et avait cinq enfants, dont mon père âgé d’un an. Elle a alors repris l'entreprise familiale tout en cherchant à promouvoir et à renforcer sa ville bien-aimée par un soutien progressif et croissant.
1920 : elle pose la première pierre de l'école gratuite des Frères De La Salle
1924 : elle fait la donation et inaugure la chapelle du Collège de Placeres des Révérends pères du Sacré-Cœur.
1935 : elle est le concepteur et le promoteur de l’aéroport de Lavacolla.
1949 : elle fonde la « Bibliothèque des bonnes lectures » avec 2 250 volumes, ouverte aux personnes à faible pouvoir d'achat. Elle est actuellement encore en activité.
1951 : elle fait une donation et construit le sanatorium de Notre-Dame de l'Espérance, géré par le RR de La Esperanza de Lorette.
1951 : Construction Cottolengo du Père Alegre, refuge pour les malades, démunis ou pauvres abandonnés.
Ce sont ses œuvres connues et datées. Il en existe d'autres qui sont difficiles à dater et à exposer.
A titre d'exemple, elle a encouragé le sanatorium psychiatrique de Conjo, ou la résidence des étudiants Colegio Mayor La Estila. Et, plus secrets, nous avons appris peu à peu sa création de bourses d’études, son aide à la presse compostellane, comme El Correo Gallego, sa sollicitude pour l’Archiconfrérie de l’apôtre saint Jacques, ses attentions au service liturgique des pauvres églises rurales. Tous, elle les aidés de conseils, avec sagesse et compassion chrétiennes, privilégiant l’intérêt des autres plutôt que le sien propre. Elle s’est montrée une femme de son temps, sans jamais ménager ses efforts.
1920 : elle pose la première pierre de l'école gratuite des Frères De La Salle
1924 : elle fait la donation et inaugure la chapelle du Collège de Placeres des Révérends pères du Sacré-Cœur.
1935 : elle est le concepteur et le promoteur de l’aéroport de Lavacolla.
1949 : elle fonde la « Bibliothèque des bonnes lectures » avec 2 250 volumes, ouverte aux personnes à faible pouvoir d'achat. Elle est actuellement encore en activité.
1951 : elle fait une donation et construit le sanatorium de Notre-Dame de l'Espérance, géré par le RR de La Esperanza de Lorette.
1951 : Construction Cottolengo du Père Alegre, refuge pour les malades, démunis ou pauvres abandonnés.
Ce sont ses œuvres connues et datées. Il en existe d'autres qui sont difficiles à dater et à exposer.
A titre d'exemple, elle a encouragé le sanatorium psychiatrique de Conjo, ou la résidence des étudiants Colegio Mayor La Estila. Et, plus secrets, nous avons appris peu à peu sa création de bourses d’études, son aide à la presse compostellane, comme El Correo Gallego, sa sollicitude pour l’Archiconfrérie de l’apôtre saint Jacques, ses attentions au service liturgique des pauvres églises rurales. Tous, elle les aidés de conseils, avec sagesse et compassion chrétiennes, privilégiant l’intérêt des autres plutôt que le sien propre. Elle s’est montrée une femme de son temps, sans jamais ménager ses efforts.
La transformation de la grande galerie

Comme si les actes de ma grand-mère semblaient ne jamais devoir finir, je tiens à en mentionner deux que je connais depuis mon enfance et dont j’apprécie la valeur :
1e Au cours de la guerre civile espagnole a pris une décision qui ne pouvait émaner que d’un esprit comme le sien. Beaucoup de jeunes filles et de jeunes mariées se sont retrouvées seules parce que les hommes étaient au front. Elle a pensé qu’elles devraient gagner leur vie si elles se retrouvaient veuves. Dans la belle galerie de la maison, elle a installé un mobilier adéquat et recruté des enseignants spécialisés dans la couture, le travail de l’argent repoussé, le travail des azabaches, traditions locales de Santiago. De cette façon, elles ont appris un métier et appris à communiquer entre elles.
2e Dans la Galice de son époque, le niveau d'éducation était très faible et la petite propriété empêchait le développement économique des campagnes. Consciente de cette réalité, pendant les mois d’été, tous les mercredis elle faisait venir à la maison un avocat ou un notaire qui recevaient les gens qui venaient consulter pour leurs problèmes et les aidaient à rédiger un testament. Pendant ce temps nous, les petits-enfants qui étions en vacances à Vista Alegre, savions que ce jour de la semaine devrait être consacré à distraire les enfants de ces familles venues demander des conseils. De cette manière, nous avons appris, les 15 petits-enfants, comment aider sans forfanterie un monde qui souffre et qui a besoin de charité mais surtout d’écoute, de gentillesse et d’affection.
1e Au cours de la guerre civile espagnole a pris une décision qui ne pouvait émaner que d’un esprit comme le sien. Beaucoup de jeunes filles et de jeunes mariées se sont retrouvées seules parce que les hommes étaient au front. Elle a pensé qu’elles devraient gagner leur vie si elles se retrouvaient veuves. Dans la belle galerie de la maison, elle a installé un mobilier adéquat et recruté des enseignants spécialisés dans la couture, le travail de l’argent repoussé, le travail des azabaches, traditions locales de Santiago. De cette façon, elles ont appris un métier et appris à communiquer entre elles.
2e Dans la Galice de son époque, le niveau d'éducation était très faible et la petite propriété empêchait le développement économique des campagnes. Consciente de cette réalité, pendant les mois d’été, tous les mercredis elle faisait venir à la maison un avocat ou un notaire qui recevaient les gens qui venaient consulter pour leurs problèmes et les aidaient à rédiger un testament. Pendant ce temps nous, les petits-enfants qui étions en vacances à Vista Alegre, savions que ce jour de la semaine devrait être consacré à distraire les enfants de ces familles venues demander des conseils. De cette manière, nous avons appris, les 15 petits-enfants, comment aider sans forfanterie un monde qui souffre et qui a besoin de charité mais surtout d’écoute, de gentillesse et d’affection.

Plaque commémorative de Dna. Isabelle et de sa famille
Dès 1924, la ville de Santiago la déclarait sa Fille Favorite
En 1950, elle a reçu de Sa Sainteté le Pape Pie XII la haute distinction de la Croix Pro Ecclesia et Pontifice « pour ses services exceptionnels rendus à l'Eglise… ».
En 1954, la ville de Santiago lui décerna la Croix d'Argent.
Le 23 août 1956 Dna. Isabelle mourut. Elle était née la nuit de Noël 1872.
Santiago a été paralysé. Les magasins étaient fermés et les gens sont descendus dans les rues pour accompagner en pèlerinage ma grand-mère bien-aimée Isabelle de Vista Alegre, à travers toute la ville en passant devant la cathédrale, jusqu’au cimetière.
Ses enfants ont été en mesure de poursuivre son travail avec respect comme un héritage sacré et un engagement historique. Ses petits-enfants et arrière petits-enfants ont reçu en héritage le charisme et la grâce, ils sont appelés à porter ses fruits dans notre vie au service et pour les plus vulnérables. Je ne peux m’étendre excessivement sur mon histoire. Mais dans cette société très individualiste dans lequel nous vivons, j’essaie de savoir quoi faire en analysant les actions de ceux qui ont établi une ligne droite et honorable. Je pense, en essayant d'adapter mon comportement à la situation de chacun, être un aiguillon, un exemple et une aide.
« pour les œuvres qu’à son bénéfice vous avez réalisées et pour le même amour que vous avez montré à votre cité » (Discours prononcé par le maire José Díaz Varela-Losada).
En 1950, elle a reçu de Sa Sainteté le Pape Pie XII la haute distinction de la Croix Pro Ecclesia et Pontifice « pour ses services exceptionnels rendus à l'Eglise… ».
En 1954, la ville de Santiago lui décerna la Croix d'Argent.
Le 23 août 1956 Dna. Isabelle mourut. Elle était née la nuit de Noël 1872.
Santiago a été paralysé. Les magasins étaient fermés et les gens sont descendus dans les rues pour accompagner en pèlerinage ma grand-mère bien-aimée Isabelle de Vista Alegre, à travers toute la ville en passant devant la cathédrale, jusqu’au cimetière.
Ses enfants ont été en mesure de poursuivre son travail avec respect comme un héritage sacré et un engagement historique. Ses petits-enfants et arrière petits-enfants ont reçu en héritage le charisme et la grâce, ils sont appelés à porter ses fruits dans notre vie au service et pour les plus vulnérables. Je ne peux m’étendre excessivement sur mon histoire. Mais dans cette société très individualiste dans lequel nous vivons, j’essaie de savoir quoi faire en analysant les actions de ceux qui ont établi une ligne droite et honorable. Je pense, en essayant d'adapter mon comportement à la situation de chacun, être un aiguillon, un exemple et une aide.
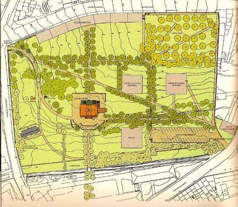
Vista Alegre aujourd’hui
En 1997, le Consortium de la ville, dans le but de réaffirmer l'engagement européen de l'Université de Santiago, à l’occasion de son 500e anniversaire, a signé un acte d’expropriation de la Villa Vista Alegre. Elle a été transformée en campus universitaire, avec trois pavillons modernes abritant le premier un centre d’Etudes Avancées, le second un Centre d’études musicales et le troisième l’Institut des études galiciennes.
La maison, maintenant appelé « Maison de l'Europe », est devenue une résidence pour les enseignants d'autres universités à travers le monde, participant à l'enseignement et à la recherche.
Tout cela est dans un parc et source de fierté pour l'Université qui partage cet espace avec des universitaires pèlerins privilégiés de l'Europe en Galice. Et le peuple espagnol a estimé utile cette communication fructueuse avec d'autres universités à travers le monde.
La grande douleur de voir à jamais fermée la porte de notre chère et aimée maison est tempérée par son devenir, dédié à une oeuvre sociale, académique et, puis-je le dire, universelle ?
Il est temps d'appliquer ce que j’ai appris à Vista Alegre.
La maison, maintenant appelé « Maison de l'Europe », est devenue une résidence pour les enseignants d'autres universités à travers le monde, participant à l'enseignement et à la recherche.
Tout cela est dans un parc et source de fierté pour l'Université qui partage cet espace avec des universitaires pèlerins privilégiés de l'Europe en Galice. Et le peuple espagnol a estimé utile cette communication fructueuse avec d'autres universités à travers le monde.
La grande douleur de voir à jamais fermée la porte de notre chère et aimée maison est tempérée par son devenir, dédié à une oeuvre sociale, académique et, puis-je le dire, universelle ?
Il est temps d'appliquer ce que j’ai appris à Vista Alegre.

Plan actuel de la propriété
Le testament de Vista Alegre
Il est temps d'appliquer ce que j'ai appris à Vista Alegre :
Se souvenir du passé avec gratitude.
Vivre aujourd'hui avec passion.
Voir l'avenir avec espoir
Vivre aujourd'hui avec passion.
Voir l'avenir avec espoir